Introducing Square Footage Inspection

Keeping you and your clients safe…

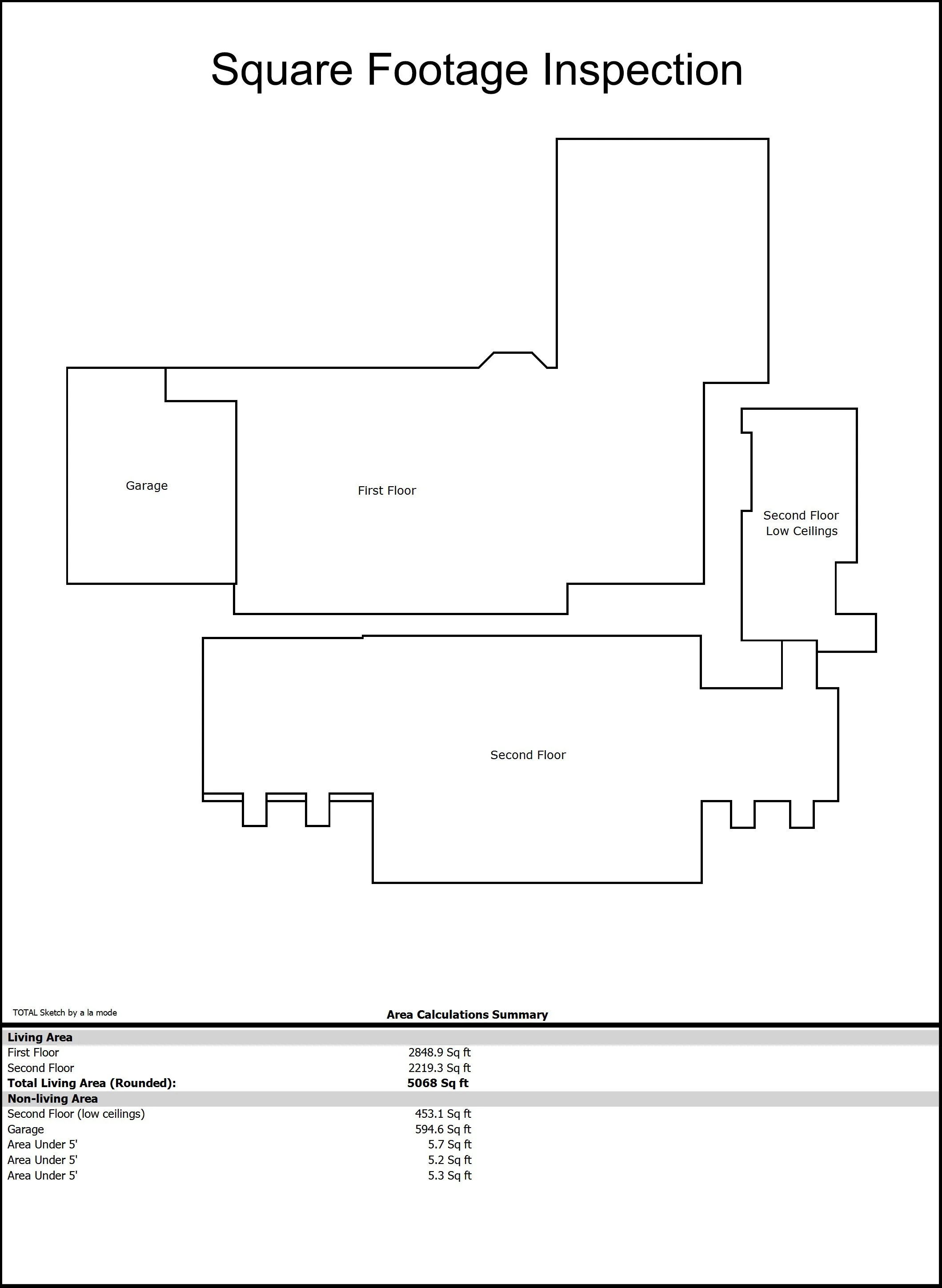
Square Footage Inspection

Technology is changing the business of real estate at an ever exceeding pace. With the advancement of this technology we need to stay educated about what does an doesn’t provide clarity in the market place. The HPS Square Footage Inspection does exactly that.

Designed to be a part of a buyer agreement, like a pest inspection or home inspection, the Square Footage Inspection keeps you and your client safe from inaccurate measurements.

Where do these inaccuracies come from?

Generally they are generated by agents and photographers with the best intentions. They are simply using software they’ve been told is accurate and acceptable for use on MLS. The truth is that square footages made by these scanning devices are not all they’re cracked up to be!

What’s wrong with using a scan?

  • Square footages are approximate and must be independently verified by the agent.

  • Dependent upon operator to notice areas that are not Living Area. The software can’t fully recognize issues related to living area and will unwittingly label non-living area as living area. Large errors leave room for enormous leave agents exposed to misrepresentations well over the 5 or even 10% marker.

  • Not possible to mark areas as non-living until next day when the sketch is delivered.

  • Scans do not include wall thicknesses correctly. Since the software cannot appropriately gauge the width of exterior walls, it makes an educated guess about the thickness - leaving valuable square footage unaccounted for.

  • Scanning apps declare their scans to be ANSI compliant and accurate up to 5% - Manually measured homes are accurate to within 1% - 4 percent is potentially a lot to be missing out on!

  • Appraisers are now relying on these scanning softwares for measurements. Long thought to be the back-stop, the fail safe at the end of a transaction, the appraiser was the last line of defense. “Oh it’ll get caught in the appraisal” is no longer true. The industry has undergone a critical shift. Many appraisers no longer perform their own measurements, and over 25% of current listings rely on unverified scans for living area data.

HPS Square Footage Inspection is a true manual measurement done by our certified home measuring specialists, fully educated on the rules of the NC Real Estate Commission. Scans provide only approximate sizes, leading to significant mistakes that have drawn attention from the North Carolina Real Estate Commission.Protect yourself and your client with a Square Footage Inspection today!